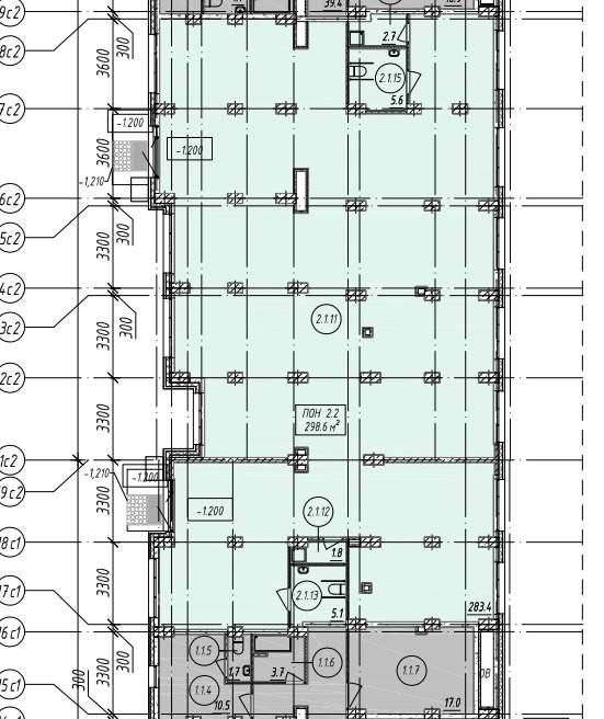
площадью 298,60 м2, по цене 65732000 по адресу Люберцы - Рождественская улица,12

Цена 65 732 000 р.
Адрес Люберцы, Рождественская улица,12
Площадь помещения 298,6 м2
Текст: Помещение под МЕДЦЕНТР от ЗАСТРОЙЩИКА! Нежилое помещение № 2.2, корпус 5.1, общей площадью 298,60 м2, первый этаж, 1 вход с улицы, 1 вход со двора. напротив муниципальный ДОО на 560 мест и Школа на 1500 мест. Помещение выходит на первую линию внутриквартального сквозного проезда. Есть стихийная парковка вдоль улицы. Высота потолков 4 м, выделенная мощность - 0,2кВт/ м2, состояние помещения - shell&core. заведены точки подключения к системам вентиляции, гвс/хвс, канализации. В помещении 9 больших витринных окон, предназначено под организацию поликлиники/мед. кабинета, под помещением - тех. этаж+кладовые. Дом вводится в эксплуатацию в 3 кв. 2024 г. ЖК сдан, заселен. Жилой комплекс расположен в 5 минутах езды от станций метро "Некрасовка», МЦД ст. Люберцы-1,2. Общее количеством квартир 4 700 шт. и населением более 8 000 человек. Целевая продажа - под мед. услуги. Доступна беспроцентная рассрочка на 2 года, все подробности по телефону.
Объявление № 23457719
Дата подачи:
22 октября 2025 г. 4:46
Дата обновления:
22 октября 2025 г. 4:00
Просмотров 7 Хотите продать быстрее?

Продавец
Отдел продаж
Показать номер телефона
Пожаловаться
Комментарии:
Добавить